Property Info

Malt Barn, Copmere End
Stafford
Stafford
ST21 6EW

In Excess of
£790,000
[wd_hustle id="3" type="social_sharing"/]
1 Reception Rooms
4 Bedrooms
4 Bathrooms
no
  • A beautifully presented detached family home
  • Located in one of North Staffordshire's most sought after areas.
  • Within easy reach of local services and amenities and surrounded by beautiful countryside.
  • Well proportioned living accommodation including a large Entrance Hall and a spacious Lounge complete with a logburning stove.
  • Bespoke fitted kitchen with integrated appliances an electric Everhot range. Adjoining Utility Room.
  • Study and a Guest Cloakroom.
  • Galleried landing and four very comfortably sized bedrooms, three with smartly fitted ensuite showers and a family bathroom.
  • Gated driveway with parking for several vehicles, a useful workshop and a double garage.
  • Landscaped rear garden with seating areas designed to catch the sun and make the most of the view over the surrounding countryside.

About this home

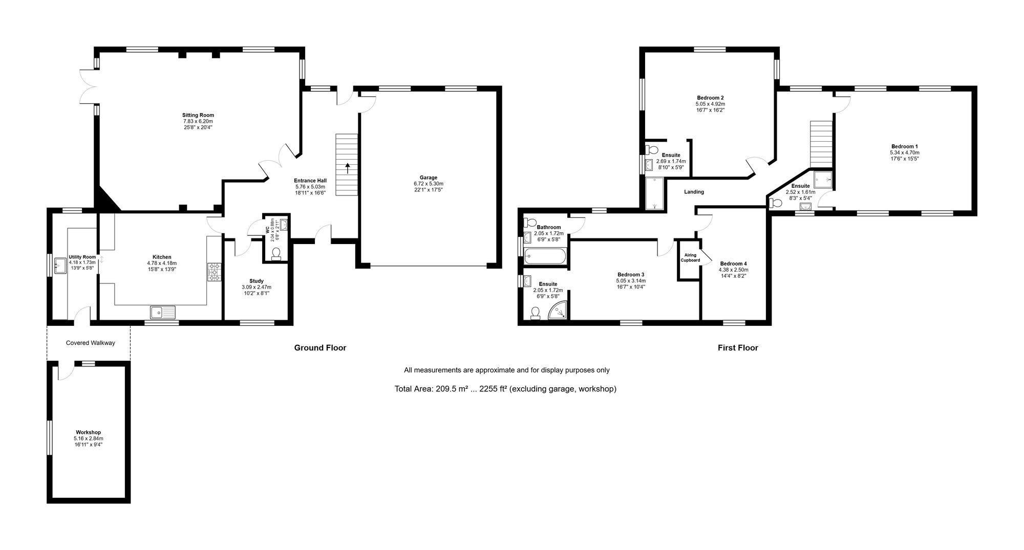
This beautifully presented four-bedroom detached family home is nestled in one of North Staffordshire’s most sought after residential areas, offering an inviting blend of character and contemporary comfort. From the moment you step into the large entrance hall, the sense of space and thoughtful design is immediately apparent. The spacious lounge is a standout feature, boasting a charming logburning stove set within a stylish hearth, perfect for cosy evenings and family gatherings.

The heart of the home is the bespoke fitted kitchen, complete with integrated appliances and an impressive electric Everhot range, ideal for both every-day cooking and entertaining. An adjoining utility room provides further practicality, while a separate study offers a peaceful retreat for home working or reading. For guests, a well-appointed cloakroom is conveniently located on the ground floor.

Ascending to the elegant galleried landing, you will find four generously sized bedrooms, each designed with comfort in mind. Three of the bedrooms benefit from smartly fitted ensuite showers, offering a touch of luxury and privacy, while the family bathroom is finished to a high standard with quality fittings.

Throughout the house, attention to detail is evident in the choice of materials and bespoke fittings, creating a harmonious blend of traditional charm and modern style.

The property is approached via a gated driveway with ample parking for several vehicles, in addition to a useful workshop and a double garage, providing excellent storage and workspace. To the rear and side, a thoughtfully landscaped garden has been created to make the most of the views of the surrounding countryside.

Located within easy reach of local services, amenities, and highly regarded schools, this home is surrounded by beautiful countryside, offering both convenience and tranquillity. The area is renowned for its scenic walks and outdoor pursuits, while excellent road links ensure swift access to neighbouring towns and transport hubs. In summary, this exceptional home combines generous, flexible living accommodation with quality craftsmanship and a prime location, making it an outstanding choice for families seeking comfort, style, and a welcoming sense of place in North Staffordshire.

The property is served by mains water and electricity. Domestic hotwater and heating is provided by an oil fired boiler. A newly installed sewage treatment plant is shared with one neighbouring property.

Map
Floorplan