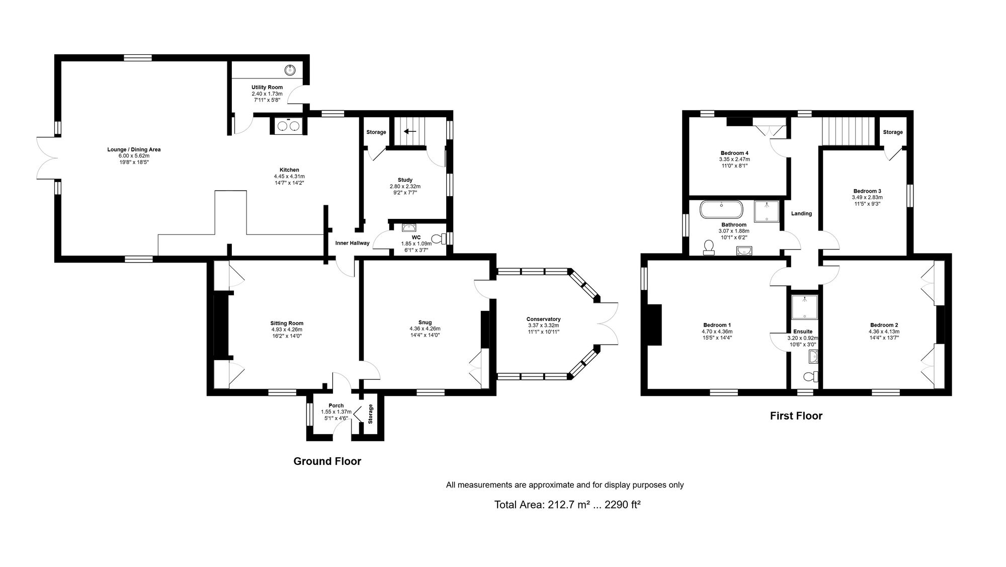
- A substantial four bedroomed detached farmhouse with detached barn & separate paddock
- Superb rural location with charming rural views & easy access to nearby Eccleshall
- Stunning open planned kitchen with large dining/ family room at its heart.
- Effortlessly combines original charm with contemporary flourishes throughout.
- Focus on Eco credentials including ground source heating, solar installation & two log burning stoves to substantially reduce running costs
- Unconverted barn with lapsed full planning permission. Stafford Borough Council Planning Reference: 01/41667/FUL. The barn also had a new roof in 2025.
- Occupying a generous plot extending to just under 0.8 acres.
- A very private & secluded location but within easy reach of nearby amenities, giving the best of both worlds.
- Be sure to check out the online video tour.
About this home
Tucked away in a superb rural setting with extensive views, this substantial four-bedroom detached farmhouse stands as a testament to timeless beauty and modern comfort.
A clever blend of period charm and contemporary sophistication, this property boasts a stunning open-plan kitchen that serves as the heart of the home, offering a seamless flow into the large dining and family room.
Showcasing eco-conscious initiatives such as ground source heating, solar installation, and two log-burning stoves, this residence not only exudes warmth but also ensures sustainable living with significantly reduced running costs.
The unconverted barn, with lapsed full planning permission for conversion (Stafford Borough Council Planning Reference: 01/41667/FUL), adds further potential to customise this property to suit unique preferences.
Embracing a generous plot extending to just under 0.8 acres, this private sanctuary provides a tranquil escape while remaining within easy reach of nearby amenities, offering the best of both worlds.
Surrounded by the calming beauty of nature, the outside space of this property beckons with endless possibilities for outdoor enjoyment and leisure. Although the expired plans accommodate an integral garage, the ample external space allows for the accommodation of multiple vehicles, giving the discerning purchaser the freedom to reimagine this area to their desired specifications.
Whether it’s creating a lush garden oasis, setting up al fresco dining spots, or simply revelling in the serenity of the countryside, the sprawling grounds offer a canvas for personalisation and relaxation.
Experience the allure of private seclusion combined with convenient access, making this property a true haven for those seeking tranquillity and a connection to nature.
Don’t miss the opportunity to explore this property via the captivating online video tour!